Mẫu nhà phố 1 tầng 3 phòng ngủ được xem là “giải pháp vàng” cho các gia đình trẻ từ 3-5 thành viên hoặc các gia đình có người lớn tuổi. Với diện tích xây dựng lý tưởng này, kiến trúc sư hoàn toàn có thể cân bằng giữa công năng sinh hoạt cơ bản và tính thẩm mỹ cao, đồng thời kiểm soát ngân sách đầu tư một cách hiệu quả. Tại 3A Design, chúng tôi biến diện tích 100m2 thành một không gian sống hoàn hảo, tiện nghi và sang trọng.
Tại Sao Mẫu Nhà Phố 1 Tầng 3 Phòng Ngủ Là Lựa Chọn Tối Ưu?
Việc xây dựng nhà 1 tầng (nhà cấp 4 hiện đại) trên diện tích khoảng 100m2 mang lại nhiều ưu điểm vượt trội mà các mẫu nhà cao tầng khó lòng sánh kịp:
- Tối ưu ngân sách đầu tư: Tổng chi phí xây dựng thấp hơn đáng kể so với nhà 2-3 tầng, dễ dàng kiểm soát dự trù ngân sách.
- Tiện nghi trong sinh hoạt: Tất cả các không gian chức năng đều nằm trên cùng một mặt sàn, rất thuận tiện cho người lớn tuổi và trẻ nhỏ di chuyển, không cần cầu thang.
- Dễ dàng thiết kế công năng: Diện tích 100m2 đủ rộng để bố trí 3 phòng ngủ, phòng khách, bếp ăn và WC chung một cách khoa học, thoáng đãng.
- Phù hợp nhiều địa hình: Dễ dàng thi công tại cả khu vực nông thôn (nhà vườn) và khu vực thành phố (nhà ống, nhà vuông).
Các Mẫu Thiết Kế Nhà Phố 1 Tầng 3 Phòng Ngủ Được Yêu Thích
Tùy thuộc vào hình dáng đất và sở thích cá nhân, các mẫu nhà 1 tầng 100m2 có thể biến hóa linh hoạt về phong cách mái và hình khối:
1. Nhà Mái Thái 1 Tầng 3 Phòng Ngủ: Sang Trọng Và Bề Thế
- Đặc điểm: Hệ mái giật cấp, hình khối cao ráo, tạo cảm giác bề thế và kiên cố. Đặc biệt phù hợp với khí hậu nhiệt đới nhờ khả năng chống nóng, thoát nước tốt.
- Thẩm mỹ: Thường kết hợp tone trắng chủ đạo, nhấn nhá bằng gạch ốp màu ghi xám và trụ cột vuông, mang vẻ đẹp tân cổ điển hoặc hiện đại tinh tế.

2. Nhà Mái Nhật/Mái Lệch 1 Tầng 3 Phòng Ngủ: Hiện Đại Và Độc Đáo
- Mái Nhật: Sự giao thoa giữa nét đẹp truyền thống (độ dốc vừa phải) và hiện đại, mang lại tổng thể thẩm mỹ cao, trẻ trung và ấn tượng. Thường đi kèm sân vườn rộng rãi.
- Mái Lệch: Điểm nhấn độc đáo, tạo cảm giác phá cách, năng động. Rất phù hợp với những gia chủ yêu thích kiến trúc tối giản, phóng khoáng và muốn tạo sự khác biệt.

3. Nhà Mái Bằng/Nhà Ống 1 Tầng 3 Phòng Ngủ: Tối Giản Và Tiện Nghi
- Đặc điểm: Hình khối vuông vức, tối giản, tiết kiệm chi phí thi công mái. Thường sử dụng hệ cửa kính lớn và tone màu tương phản (trắng – đen/ghi) để tăng tính thẩm mỹ và lấy sáng.
- Ưu điểm: Phù hợp với nhà phố, nhà ống có diện tích hẹp ngang. Mái bằng có thể tận dụng làm sân thượng mini hoặc bồn trồng cây xanh.

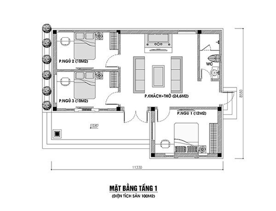
Giải Pháp Công Năng Tối Ưu Cho Mẫu Nhà 1 Tầng 100m2
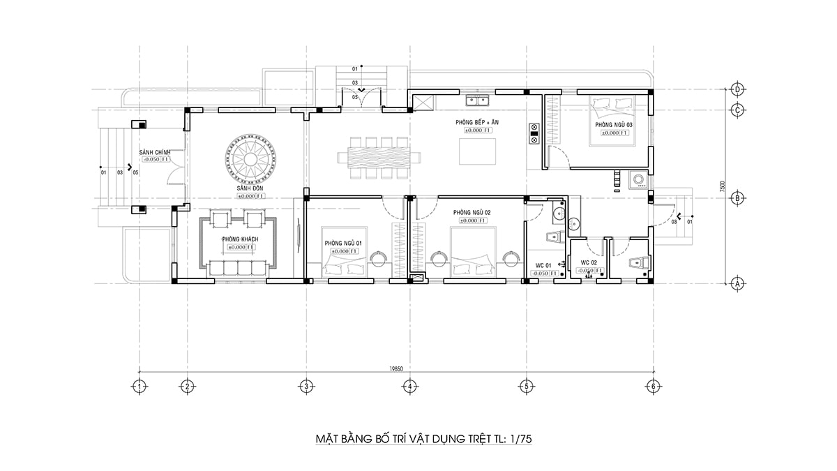
Mấu chốt của thiết kế nhà phố 1 tầng 3 phòng ngủ 100m2 là sự phân chia khoa học, đảm bảo ánh sáng và sự liên kết giữa các không gian:
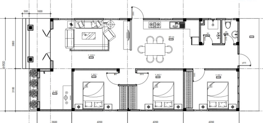
- Không gian sinh hoạt chung:
- Phòng khách – bếp – ăn liên thông: Đây là giải pháp bắt buộc để tối ưu diện tích và tạo cảm giác rộng rãi, thoáng đãng. bếp nên đặt phía cuối nhà hoặc có hệ thống hút mùi hiệu quả.
- Phòng thờ: Nên đặt trang nghiêm, thường hướng ra phía mặt tiền. có thể dùng vách ngăn cnc hoặc tủ thờ kết hợp vách ngăn nhẹ nhàng để tách biệt với phòng khách mà vẫn giữ sự kết nối.

- Khu vực riêng tư (3 phòng ngủ):
- Phòng ngủ master: Thường có diện tích lớn nhất và wc riêng khép kín. nên đặt ở vị trí yên tĩnh, đón ánh sáng tự nhiên vừa phải.
- Phòng ngủ thường (2 phòng): Diện tích vừa phải, bố trí sát nhau. WC chung nên được đặt ở vị trí trung tâm, thuận tiện cho cả 2 phòng ngủ này và khu vực sinh hoạt chung.

- Tận dụng khoảng sân: Nếu có diện tích đất lớn (ví dụ 8x15m), nên dành một phần diện tích trước nhà làm sân vườn/gara để tăng thêm mảng xanh và sự mát mẻ.
Lưu Ý Vàng Khi Thiết Kế & Thi Công Nhà 1 Tầng 3 Phòng Ngủ
Để có được một ngôi nhà 1 tầng 3 phòng ngủ đẹp và hoàn hảo, gia chủ cần nắm bắt các yếu tố then chốt sau:
- Dự trù ngân sách chi tiết: Đây là yếu tố hàng đầu. Gia chủ nên tìm đến đơn vị chuyên nghiệp như 3A Design để có bảng dự toán kinh phí rõ ràng, chi tiết vật liệu (từ phần thô đến hoàn thiện nội thất) để tránh phát sinh ngoài ý muốn.
- Hoàn thiện hồ sơ kiến trúc đầy đủ: Hồ sơ phải bao gồm bản vẽ kiến trúc, kết cấu, điện – nước chi tiết. Điều này không chỉ đảm bảo công trình đạt tiêu chuẩn kỹ thuật mà còn giúp nhà thầu thi công chính xác.
- Phong thủy và ánh sáng: Đặc trưng nhà 1 tầng cần được đảm bảo thông thoáng. Cửa sổ lớn, hệ cửa kính khung nhôm xingfa là giải pháp hiệu quả. Bố trí hướng phòng ngủ, hướng bếp hợp mệnh gia chủ để thu hút tài lộc, may mắn.
- Chọn vật liệu hoàn thiện: Ưu tiên các vật liệu có độ bền cao và tính thẩm mỹ vượt thời gian như gạch ốp, đá tự nhiên, gỗ công nghiệp chất lượng cao (MDF chống ẩm) để đảm bảo tuổi thọ công trình.
3A Design luôn sẵn sàng đồng hành cùng bạn để biến mẫu nhà phố 1 tầng 3 phòng ngủ 100m2 thành một tổ ấm tiện nghi, thẩm mỹ, với chi phí đầu tư tối ưu nhất. Hãy liên hệ với chúng tôi để nhận tư vấn giải pháp thiết kế phù hợp với diện tích đất và phong cách sống của gia đình bạn.

English