THÔNG TIN CHI TIẾT
Diện tích đất: 6×50.
Diện tích xây dựng: 520m2.
Quy mô: 1 trệt, 2 lầu..
BỐ TRÍ CÔNG NĂNG
Tầng 1: Gara xe, hồ cá Koi; Sảnh nghỉ + Powder room (Phòng tắm dành riêng cho khách); Phòng khách, phòng ngủ 1, bếp và phòng ăn, wc; Hồ bơi.
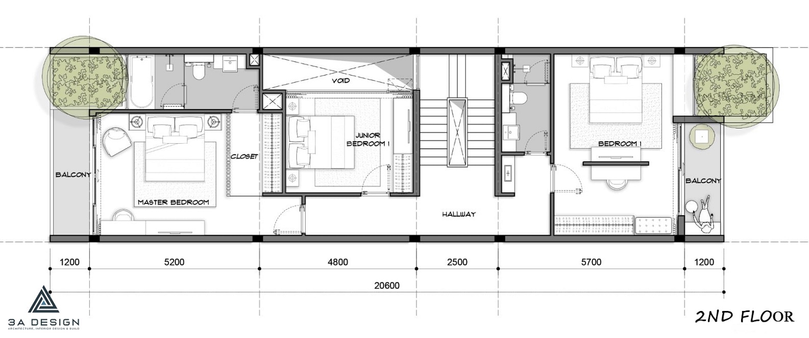
Tầng 2: Phòng ngủ Master + wc; phòng ngủ 3, phòng ngủ 4, wc.
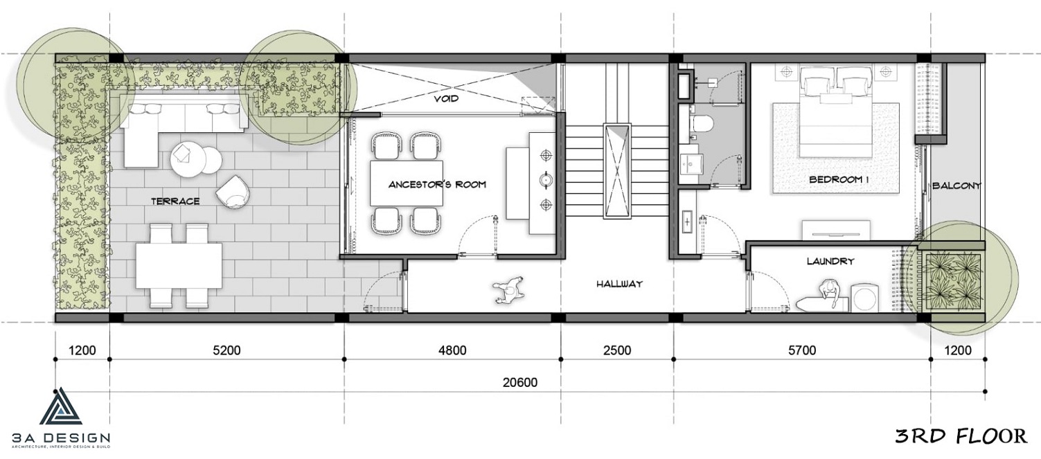
Tầng 3: Sân thượng, phòng thờ; Phòng ngủ 5, wc, phòng giặt ủi.

English